SIL新宿 西武新宿の賃貸店舗・事務所!管理会社 貸店舗 機械警備 デジタルサイネージ 業種相談|株式会社G.Aホーム

PC
現在 0 マイ条件の活用法 お気に入りの活用法

TOPページ > 新宿区の貸事務所・貸店舗情報一覧 > SIL新宿 西武新宿の賃貸店舗・事務所!

SIL新宿 西武新宿の賃貸店舗・事務所

お問合わせNO:2255
賃料 239.424万円 共益費 / 管理費 賃料込 / - 敷金 / 礼金 12ヶ月 / -
用途 / 構造 店舗・事務所 / S造(鉄骨造) 更新料 / 再契約料金 保証金 -
契約面積 272.95m2 / 82.56坪 所在階 / 階数 5階 / 8階 築年月 2005年9月 
坪単価 2.9万円 契約の種類 定期借家
交通
西武新宿線 「西武新宿駅」 徒歩1分
JR山手線 「新宿駅」 徒歩9分
東京メトロ丸ノ内線 「新宿三丁目駅」 徒歩7分
所在地 東京都新宿区歌舞伎町2-46-3   周辺MAP
※賃料・共益費/管理費・礼金には別途消費税がかかります。

写真枚数は 10枚 です。
 
【建物外観】 
  • 【建物外観】 
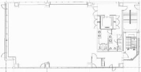
  • 【間取】 

【SIL新宿についてスタッフからのイチオシポイント!】

西武新宿駅前 貸店舗 貸事務所 82.56坪 デジタルサイネージ 業種相談新宿区歌舞伎町2丁目にありますSIL新宿ビルは最寄駅の西武新宿線「西武新宿」駅から徒歩1分の貸事務所、貸店舗物件になります。面積は約82.56坪あり、エントランスにはデジタルサイネージを導入しております。周辺には飲食店やコンビニ、ホテル等あります。靖国通りから近く、JR「新宿」駅からも徒歩圏内で交通アクセスも良好です。業種等お気軽にご相談ください。
SIL新宿は東京都新宿区歌舞伎町2-46-3【西武新宿線 西武新宿駅徒歩1分】にある賃貸店舗・事務所です。
2005年9月築の店舗・事務所で8階建ての5階部分です。

※物件のもっと詳しい内容や入居時期、諸条件のご相談など、ホームページには掲載が間に合わず載せきれていない情報もございます。
気になることが御座いましたらお気軽にメールにてお問い合わせください。

 物件詳細情報

契約期間 3年 償却 2ヶ月 他初期費用  ※再契約料:新賃料1ヶ月分
※契約面積はグロス(給湯室、トイレ、EVホール含む)
駐車場 方位 エレベーター 人 基
現況 空家 入居可能日 即入居可 取引態様 媒介
24時間使用 床仕様 天井高
警備 空調 光ケーブル
造作 給排水 ガス

 設備詳細情報

設備
  • 男女別トイレ
  • エアコン
  • 2階以上
  • エレベーター
  • OAフロア
  • 耐震構造(新耐震基準)
  • 飲食以外の店舗相談
  • ワンフロア・ワンテナント
  • 業種
  • 美容・エステ・クリニック
  • 塾・スクール
  • 事務所
  • コメント 西武新宿駅前 貸店舗 貸事務所 82.56坪 デジタルサイネージ 業種相談新宿区歌舞伎町2丁目にありますSIL新宿ビルは最寄駅の西武新宿線「西武新宿」駅から徒歩1分の貸事務所、貸店舗物件になります。面積は約82.56坪あり、エントランスにはデジタルサイネージを導入しております。周辺には飲食店やコンビニ、ホテル等あります。靖国通りから近く、JR「新宿」駅からも徒歩圏内で交通アクセスも良好です。業種等お気軽にご相談ください。
    備 考 西武新宿駅前ビルの概要 新宿区歌舞伎町2丁目 西武新宿駅 貸店舗・貸事務所 エレベーター 
    情報更新日:2026年04月08日 次回更新予定日:2026年04月22日
    ※各種情報と現状に差異がある場合は、現状優先となります。

     こちらの物件の空室状況

    区画 賃料 坪単価 共益 / 管理費 契約面積 敷金 / 保証金 礼金 償却 お気に入り 物件詳細

     地図情報


     こちらの物件へのお問合せはこちらから

    ホームページを見てと伝えてください
    株式会社G.Aホーム
    〒171-0022
    東京都豊島区南池袋3-15-11 ナイスフォーラム南池袋6F
    TEL : 03-5956-4004
    お問合わせNO:2255

    空室情報の確認や詳細を知りたい方
    お問合せはお気軽にお問合せください!


    この物件に似た物件をチェック!


    閲覧した物件の履歴

    閲覧した物件の一覧を見る


    気になったら今すぐ!カンタンお問合せ



    用途必須
    【備考欄】
    希望条件・来店希望日・その他質問がございましたらご記入ください。
    お客様情報
    会社名・お名前必須
    連絡先必須


    ※ご記入いただいたメールアドレス宛てに、お問合せ内容の確認メールをお送りいたします。
    ※Yahoo!メールなどのフリーメールをご利用の場合、迷惑メールフォルダに入る場合があります。
     迷惑メールのフォルダ・設定等をご確認下さい。
    メールアドレス
    電話番号
    FAX(任意)
    入居時期



    プライバシーポリシーを必ずご確認ください。内容に同意の上、確認画面へお進みください。

     


    ▲ページのTOPへ戻る



    株式会社G.Aホーム

    TEL.03-5956-4004(不動産部)/03-5396-3841(建物管理部)
    MAIL.fudousan@ga-home.jp
    〒171-0022
    東京都豊島区南池袋3丁目15−11
    ナイスフォーラム南池袋6階
    9:00〜17:30
    (定休日:土曜日・日曜日・祝日)

    テナントオーナー様へ 物件リクエスト